$489,900
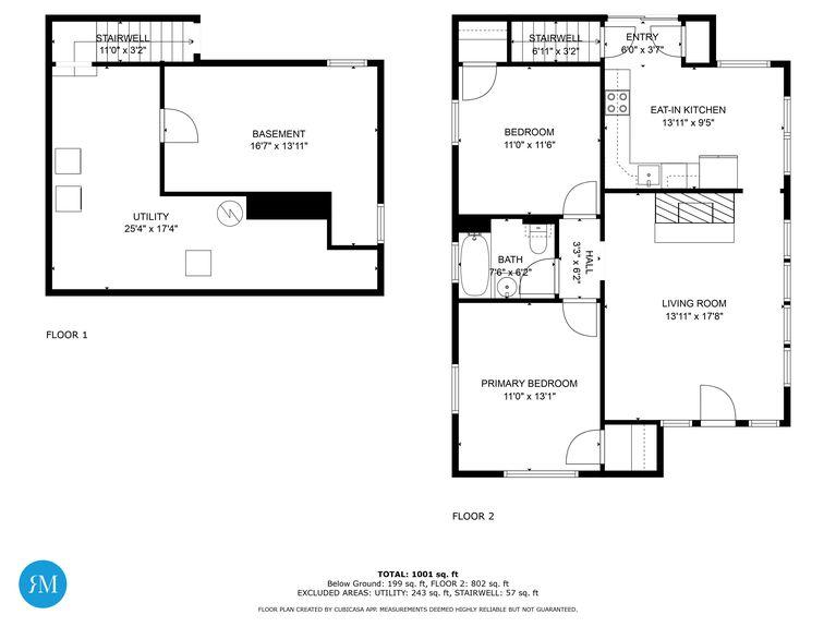
Quintessential Portland bungalow in the hot and vibrant Alberta Arts and Killingsworth neighborhood. Home has gorgeous craftsman details and an oversized lot. The lot is fully fenced it, including the driveway and pathway up to the large covered front porch complete with a swing. Once inside, you’ll notice the grand… Read Morefireplace in the living room, as well as the refinished Oregon White Oak hardwood floors. 2 light filled bedrooms on the main and a finished room in the basement with new carpet. The remodeled kitchen has a brand new quartz countertops, stainless steel appliances, a tiled backsplash, a pantry, an eating nook, and a sliding door that leads out onto the large deck and landscaped backyard. In the yard, there are an array of raised planting beds with mature plant growth like Bamboo and Japanese Maple trees. One of the best neighborhoods in the city for walking and biking, earning a bike score of 99 and 93 in walkability. Meaning that this home is both a walker and biker’s paradise. You'll find yourself just steps away from an array of popular Portland restaurants, schools, and parks. Check out the full list of features!Read Less
Features
Bedrooms
3
Bathrooms
1
Square Ft.
1272
Mortgage Calculator
Monthly Payment
$0
Perfect home finder
'VIP' Listing Search
Whenever a listing hits the market that matches your criteria you will be immediately notified.
Angela Stevens
Angela Stevens | Licensed Principal Broker

Please Select Date
Please Select Type
Similar Listings
Confirm your time
Fill in your details and we will contact you to confirm a time.
Contact Form
Welcome to our open house!
We encourage you to take a few seconds to fill out your information so we can send you exclusive updates for this listing!































