Share My QR |
|
Success!
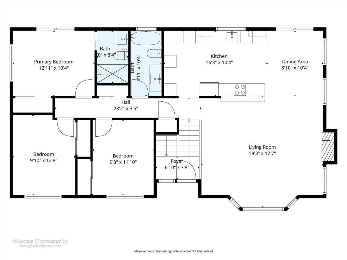
Situated in a quiet neighborhood of West Linn, this remodeled home offers privacy, nature, and modern updates all on almost 2 acres of land. Enter the home to a great room with high ceilings, an open living, dining space and beautiful kitchen with quartz counters and stainless steel appliances. The sliding doors off the dining room go out to a large deck overlooking peaceful wooded views. Large windows fill the home with natural light and bring the outdoors in.
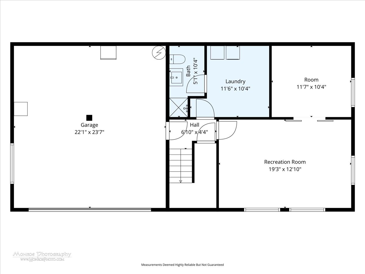
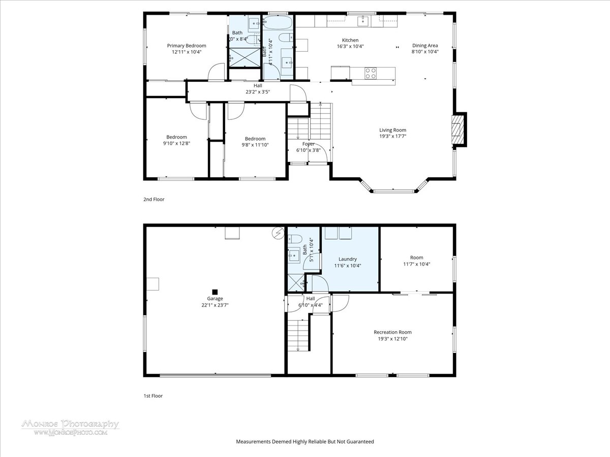
With 3 bedrooms and 2 full bathrooms on the main, the versatile lower level offers a spacious family room and recently added 4th bedroom/ den with a full bath and laundry nearby. Recent updates over the last few years include stainless steel appliances, vinyl windows, tile bathrooms, updated interior doors and trim, fresh paint and well maintained systems. Most recently a new fireplace mantle was added, a large picture window in the entry, designer colors and wallpaper, an EV charger outlet, plus landscaping like native grasses, blueberry and olive trees planted.
Outside you’ll find a circular driveway, special outdoor spaces like a fire pit spot, large deck, RV/boat parking, and a large space cleared for a potential ADU, studio or a fenced animal yard.
All of this, just a few minutes to Hebb Park with a Willamette River boat ramp, award winning vineyards, Shortland Golf Club, and the equestrian center. Not too far from the shops and restaurants on the historic Willamette main street but far enough away to enjoy complete privacy and charming mix of neighbors—from fresh egg stands down the street to multi-million-dollar estates around the corner. A truly peaceful retreat with room to grow.
Fill in your details and we will contact you to confirm a time.
Share My QR |
|