1446 NW Laura Vista DRAlbany, OR 97321




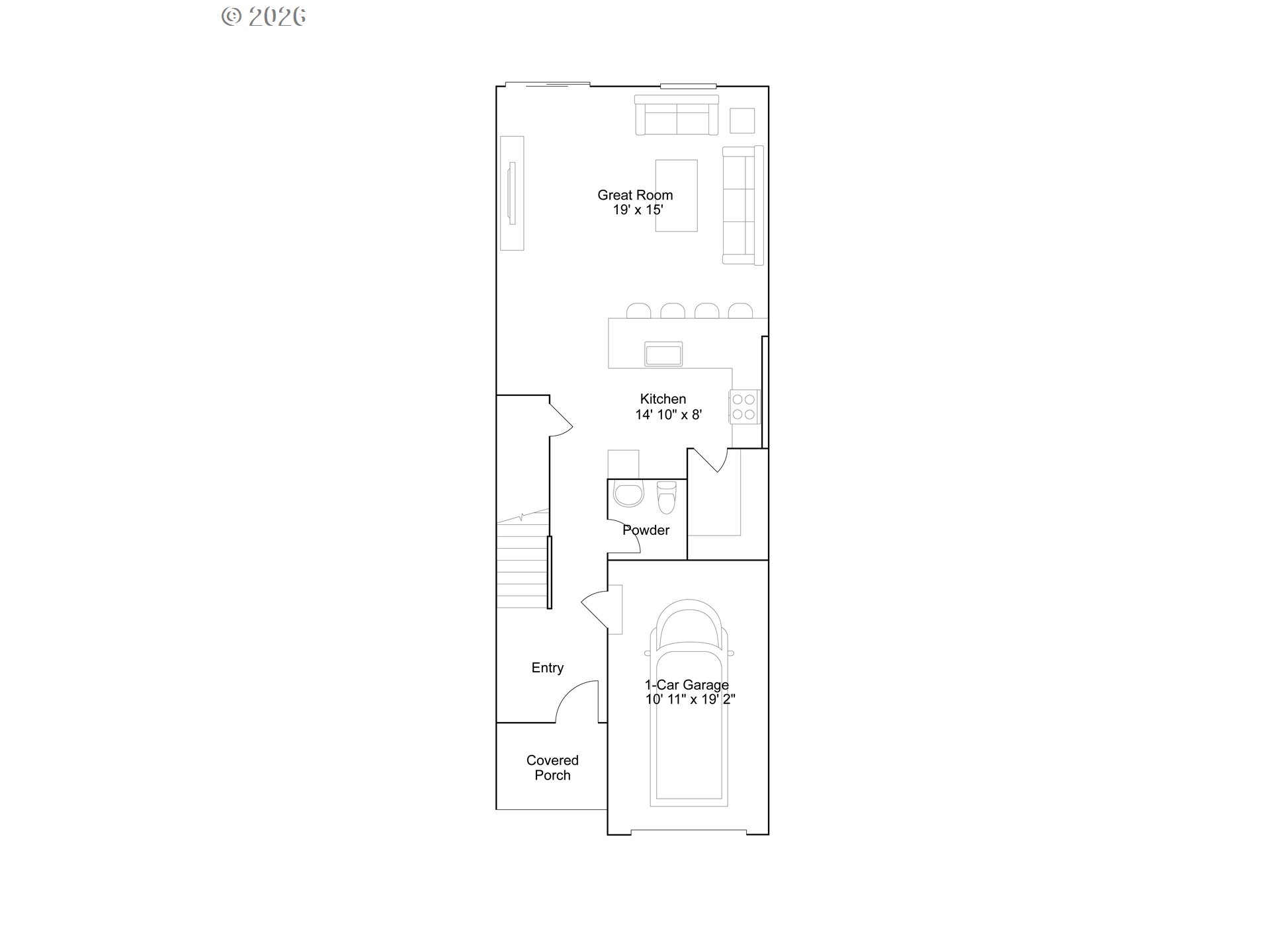
Welcome to Riverwood Crossing. This Move-In Ready Reagan plan presents a modern two-story paired design with an open-concept first floor that unites the kitchen, dining, and living areas, ideal for both everyday living and entertaining. Upstairs, a versatile loft separates two secondary bedrooms from the private primary suite, which includes a full bathroom with dual vanities and a walk-in closet. Interior finishes include quartz countertops, Shaker-style cabinets, and LVP flooring in the kitchen and bathrooms, plus fencing, landscaping, and sprinkler irrigation for added convenience. This home also includes central air conditioning, a refrigerator, washer and dryer, and blinds—all at no extra cost! Riverwood Crossing is in close proximity to the Park, Community College, Golf, and historic downtown Albany, with the University just 20 minutes away. Homesite #57. Photos are of a similar home - features & finishes will vary. Flex credit/closing cost incentive available when financing with preferred lender! Use towards rate buydown and closing costs.*
| 5 days ago | Listing updated with changes from the MLS® | |
| 6 days ago | Listing first seen on site |
The content relating to real estate for sale on this website comes in part from the IDX program of the RMLS™ of Portland, Oregon. Real estate listings held by brokerage firms other than are marked with the RMLS™ logo, and detailed information about these properties includes the names of the listing brokers. Listing content is Copyright © 2026 RMLS™, Portland, Oregon. Some properties which appear for sale on this website may subsequently have sold or may no longer be available.
Last checked 2026-03-18 01:14 AM PDT.
All information provided is deemed reliable but is not guaranteed and should be independently verified
K
