Save
Ask
Tour
Hide
$570,000
New Listing
12217 NE 107TH WAYVancouver, WA 98682
For Sale|Single Family Residence|Active
4
Beds
3
Total Baths
2
Full Baths
1
Partial Bath
2,014
SqFt
$283
/SqFt
2025
Built
Subdivision:
RANDALL K ESTATES
County:
Clark
Listing courtesy of Travis Glendenning of FBR Realty, Inc. 3609037002
Due to the health concerns created by Coronavirus we are offering personal 1-1 online video walkthough tours where possible.
Call Now: 503-974-1444
Is this the listing for you? We can help make it yours.
503-974-1444


Save
Ask
Tour
Hide
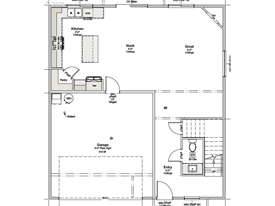
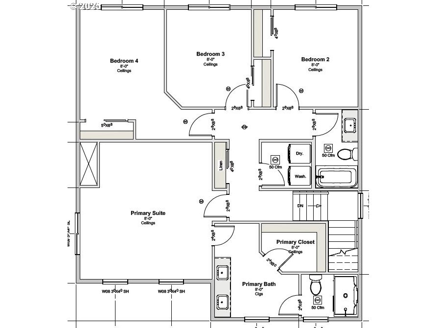
MOVE IN READY MID SEPT, under construction now. 4 bedrooms and 2.5 bathrooms in over 2000 sqft! Quartz slab in kitchen and baths. Wood laminate in entry, kitchen, nook and living room. Fireplace, 9 foot ceilings, designer cabinets, covered patio, fencing, front and back yard landscaping. Lender and builder credits available. Call for details.
Save
Ask
Tour
Hide
Listing Snapshot
Price
$570,000
Days On Site
0 Days
Bedrooms
4
Inside Area (SqFt)
2,014 sqft
Total Baths
3
Full Baths
2
Partial Baths
1
Lot Size
0.1 Acres
Year Built
2025
MLS® Number
409073596
Status
Active
Property Tax
N/A
HOA/Condo/Coop Fees
$65 monthly
Sq Ft Source
N/A
Friends & Family
Recent Activity
| 6 hours ago | Listing updated with changes from the MLS® | |
| 7 hours ago | Listing first seen on site |
General Features
Acres
0.1
Attached Garage
Yes
Disclosures
Disclosure
Foundation
Concrete Perimeter
Garage
Yes
Garage Spaces
2
Home Warranty
Yes
Number Of Stories
2
Parking
Garage Door OpenerDrivewayAttached
Parking Spaces
2
Property Condition
New Construction
Property Sub Type
Single Family Residence
Sewer
Public Sewer
SqFt Total
2014
Style
Stories2
Water Source
Public
Zoning
SFR
Interior Features
Appliances
DisposalFree-Standing RangeMicrowave
Basement
Crawl Space
Cooling
Heat Pump
Fireplace
Yes
Fireplace Features
Electric
Fireplaces
1
Flooring
Carpet
Heating
Heat PumpForced Air
Interior
Kitchen IslandPantryHigh CeilingsHigh Speed Internet
Window Features
Double Pane Windows
Save
Ask
Tour
Hide
Exterior Features
Fencing
Fenced
Lot Features
Cul-De-SacLevel
Patio And Porch
Covered
Roof
Composition
Windows/Doors
Double Pane Windows
Community Features
Association Amenities
Management
Association Dues
65
Financing Terms Available
CashConventionalFHAVA Loan
HOA Fee Frequency
Monthly
MLS Area
_62
Roads
Paved
Schools
School District
Unknown
Elementary School
Glenwood
Middle School
Laurin
High School
Prairie
Listing courtesy of Travis Glendenning of FBR Realty, Inc. 3609037002
The content relating to real estate for sale on this website comes in part from the IDX program of the RMLS™ of Portland, Oregon. Real estate listings held by brokerage firms other than are marked with the RMLS™ logo, and detailed information about these properties includes the names of the listing brokers. Listing content is Copyright © 2025 RMLS™, Portland, Oregon. Some properties which appear for sale on this website may subsequently have sold or may no longer be available.
Last checked 2025-08-19 06:41 PM PDT.
All information provided is deemed reliable but is not guaranteed and should be independently verified
The content relating to real estate for sale on this website comes in part from the IDX program of the RMLS™ of Portland, Oregon. Real estate listings held by brokerage firms other than are marked with the RMLS™ logo, and detailed information about these properties includes the names of the listing brokers. Listing content is Copyright © 2025 RMLS™, Portland, Oregon. Some properties which appear for sale on this website may subsequently have sold or may no longer be available.
Last checked 2025-08-19 06:41 PM PDT.
All information provided is deemed reliable but is not guaranteed and should be independently verified
K
Neighborhood & Commute
Source: Walkscore
Community information and market data Powered by ATTOM Data Solutions. Copyright ©2019 ATTOM Data Solutions. Information is deemed reliable but not guaranteed.
Save
Ask
Tour
Hide

Did you know? You can invite friends and family to your search. They can join your search, rate and discuss listings with you.