892 SIFUENTEZ CTWoodburn, OR 97071




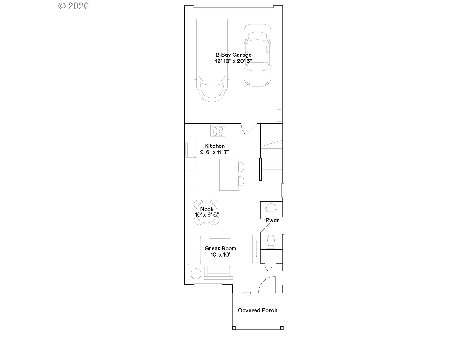
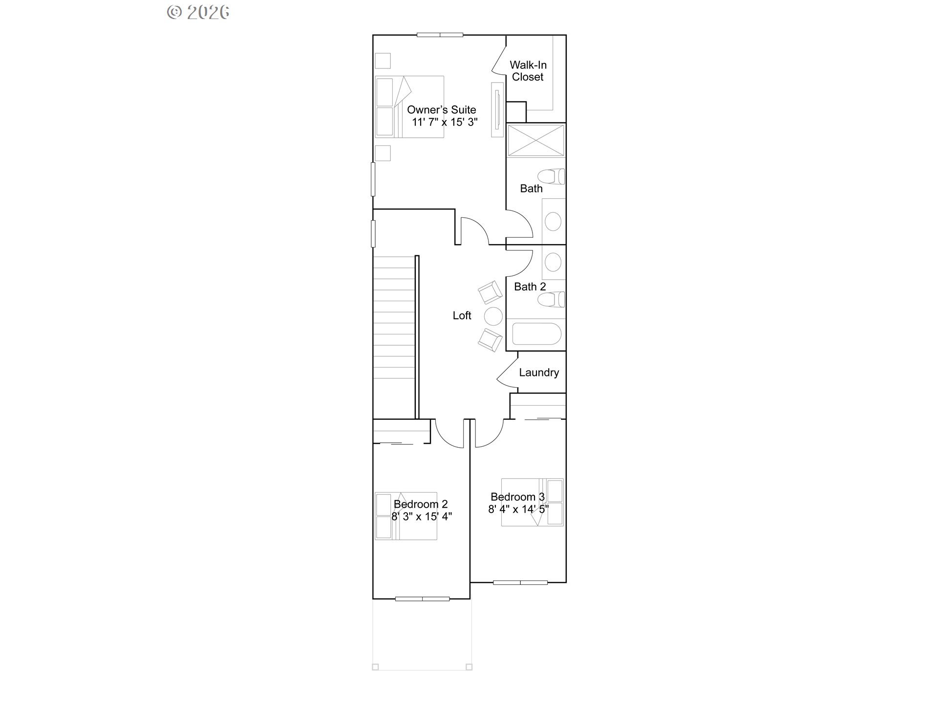
This new construction Smith Creek townhome sits on a corner lot and is conveniently located near I-5, just minutes from Outlets and close to parks, golf courses, schools, and vineyards, with easy highway access for smooth commutes. Community amenities include a dog park, multiple playgrounds, picnic areas, trails, and a basketball court. Enter the Pierce floor plan, offering two spacious stories designed for modern living. The first floor shares an open layout between the kitchen, nook and Great Room for easy entertaining with convenient access to a powder room. Upstairs are two secondary bedrooms surrounding a versatile loft that can serve as an additional shared living space or office. Tucked away at the back end of the second floor, an owner's suite waits for you to enjoy your own en-suite bathroom and a spacious walk-in closet. Other interior highlights include quartz countertops, shaker-style cabinets, luxury vinyl plank flooring, and luxury vinyl tile. "Everything's Included" package means that price of home includes Refrigerator, Washer & Dryer, A/C, and blinds! Photos are for illustrative purposes only and are sample photos from similar model homes - features & finishes may vary. Homesite #679, estimated completion: Spring 2026.
| yesterday | Listing updated with changes from the MLS® | |
| yesterday | Listing first seen on site |
The content relating to real estate for sale on this website comes in part from the IDX program of the RMLS™ of Portland, Oregon. Real estate listings held by brokerage firms other than are marked with the RMLS™ logo, and detailed information about these properties includes the names of the listing brokers. Listing content is Copyright © 2026 RMLS™, Portland, Oregon. Some properties which appear for sale on this website may subsequently have sold or may no longer be available.
Last checked 2026-03-13 07:29 PM PDT.
All information provided is deemed reliable but is not guaranteed and should be independently verified
K
